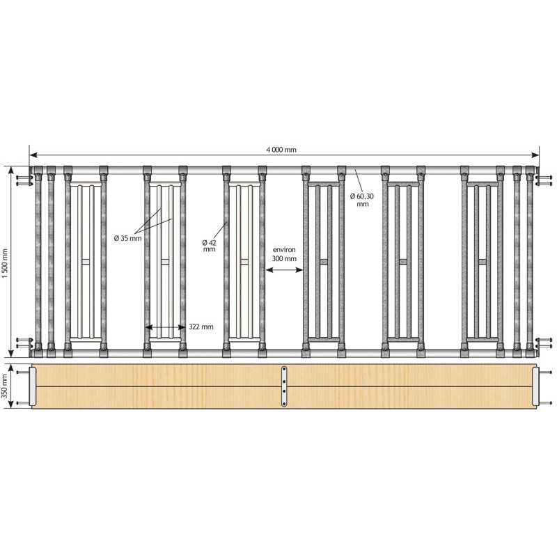
Pour extension abri SP profondeur intérieure 4 m.
Ce kit permet la distribution en libre-service du fourrage à vos chevaux. Des fermetures tubulaires fixées entre deux tubes horizontaux créent des zones d'accès au fourrage.
Idéalement positionné entre les deux poteaux d'une extension d'abri, il permet de limiter le gaspillage et les approvisionnements répétitifs en foin.
Installé en extrémité de structure, il permet la création de 4 accès en profondeur 3 m et de 5 accès en profondeur 4 m.
En utilisant 2 kits positionnés sur la partie centrale d'un abri, (idéalement extension Simple pente de 2,09 m, adapté à la distribution de conditionnement de fourrage rond ou big carré) 8 passages de tête en profondeur 3 m et 10 passages en profondeur 4 m sont créés.
Un panneau de fermeture tubulaire de 5 lisses et extensible se positionne à l'avant de l'extension abri et permet de bloquer l'accès aux animaux tout en créant une porte pour l'approvisionnement du fourrage.
Le kit est composé de :
- 2 tubes horizontaux Ø 60.3 mm de longueur 3,96 m,
- 4 embouts en « L »,
- 6 kits libre-service hauteur 1,55 m,
- 4 barres supplémentaires avec coquilles,
- 2 madriers 63 x 175 mm avec 2 cornières de fixation et 1 plat de maintien.
| Profondeur extérieure | 4,18 m |
| Profondeur intérieure | 4 m |
| Unité de vente | Le kit |
| Emballage | Sans emballage |
Diane V. Super équipement pour le foin en libre service, facile à monter !
